* Nuotraukos ir vaizdo įrašai yra tik iliustracinio pobūdžio ir gali skirtis nuo realios prekės išvaizdos. Prekės pristatomos neimpregnuotos ir natūralios medžio spalvos.
IR-016 – 25.5m² – 44mm
9,600.00 €
Please note: All prices displayed on our website are inclusive of VAT.
Svarbi informacija
Pristatymas per 6-10 savaičių
10 metų garantija konstrukcijai
Į kainą įskaičiuota: namelio konstrukcijos komplektas, izoliacijos paketas, fasado apdaila, PVC langai ir lauko durys, medinės vidaus durys, montavimo medžiagos, surinkimo instrukcija, pristatymas.
Radote pigiau kitur? Mes pritaikysime geriausią kainą!
Tiesiog praneškite mums savo kainą.
APRAŠYMAS
PRODUKTO SPECIFIKACIJA
| PARAMETRAS | REIKŠMĖ |
| STATYBINĖ MEDŽIAGA | 44 MM LĖTAI AUGANTI EGLĖ / PUŠIS |
| SIENŲ STORIS | 44 MM ĮLAIDŲ IR IŠKYŠŲ (TONGUE & GROOVE) RĄSTAI |
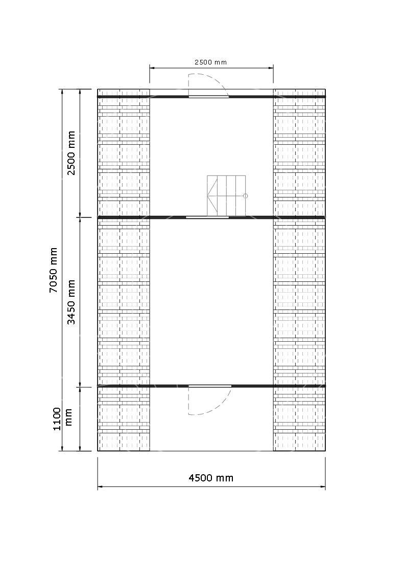
| IŠORINIAI MATMENYS (PXG) | 4500 X 7050 MM |
| VIDINIS PLOTAS | 25.2 M² |
| KRAIGO AUKŠTIS | 5670 MM |
| AUKŠTŲ SKAIČIUS | 2 |
| VIDINĖS DURYS | 1 VNT. – 850 X 1920 MM (MEDINĖS, ĮSKAIČIUOTOS) |
| IŠORINĖS DURYS | 1 VNT. – 1610 X 1920 MM IR 1 VNT. – 700 X 1920 MM DVIGUBO STIKLINIMO (MEDINĖS ARBA PVC) |
| LANGAI | 1 VNT. – 1380 X 1050 MM IR 1 VNT. – 700 X 1050 MM DVIGUBO STIKLINIMO (MEDINĖS ARBA PVC) |
| KAMBARIŲ SKAIČIUS | 4 |
| STOGAS | 18 MM ĮLAIDŲ IR IŠKYŠŲ LENTOS |
| STOGO ATBRAILA | 1100 MM (PRIEKYJE), 100 MM (ŠONUOSE/GALE) |
| GRINDŲ LAGĖS | 45 X 50 MM (IMPREGNUOTOS) |
| GRINDYS | 18 MM ĮLAIDŲ IR IŠKYŠŲ LENTOS |
SURINKIMAS
KVALIFIKUOTOS MONTAVIMO PASLAUGOS
Bendradarbiaujame su patyrusiais montavimo meistrais visoje Lietuvoje, kurie pasiruošę greitai ir kokybiškai surinkti Jūsų naująjį gaminį. Jei Jus domina ši paslauga, pridėkite ją į krepšelį prieš pirkdami arba susisiekite su mumis. Mes suderinsime montavimo laiką ir aptarsime visas detales.
ATSISIŲSKITE INSTRUKCIJĄ IR SURINKITE PATYS
Dauguma mūsų gaminių turi lengvai suprantamą montavimo instrukciją, skirtą kiekvienam, turinčiam bent šiek tiek statybos ar surinkimo patirties. Atsisiųskite instrukciją ČIA
SUSIPAŽINKITE SU INSTRUKCIJA
Prieš pradėdami bet kokius montavimo darbus, atidžiai perskaitykite instrukciją. Surinkimo metu griežtai laikykitės nurodymų. „Timberlodge365“ neprisiima atsakomybės už žalą ar sužalojimus, atsiradusius dėl neteisingo montavimo ar saugos taisyklių nesilaikymo.
REIKIA PAGALBOS? KLAUSKITE!
Jei surinkimo metu iškilo klausimų ar problemų, nedvejodami kreipkitės! Mūsų specialistai mielai pakonsultuos. Pagalba teikiama I-V nuo 8:00 iki 17:00 val. Skambinkite mums arba rašykite el. paštu: info@timberlodge365.lt
KODĖL RINKTIS „TIMBER LODGE 365“
DAUGIAU NEI 10 METŲ PATIRTIS
Sukaupę daugiau nei 10 metų patirtį medinių pastatų gamyboje, esame viena didžiausių ir labiausiai patyrusių šio sektoriaus įmonių Šiaurės Europoje.
GAMINTOJO GARANTIJA
Mes vertiname kokybę ir meistriškumą, todėl savo gaminiams drąsiai suteikiame iki 5 metų garantiją nuo puvimo (priklausomai nuo pasirinkto produkto).
GREITAS IR SAUGUS PRISTATYMAS
Gaminius, esančius sandėlyje, pristatome per 2-4 savaites. Individualių užsakymų gamyba ir pristatymas paprastai trunka apie 10-12 savaičių.
MODELIAI KIEKVIENO POREIKIAMS
Gaminame viską: nuo paprastų sandėliukų ir vasarnamių iki sudėtingų modulinių pastatų, siūlydami savo klientams itin platų pasirinkimą.
VISAS PASLAUGŲ PAKETAS
Mūsų tikslas – suteikti pilną aptarnavimą: nuo profesionalių konsultacijų iki saugaus pristatymo ir kokybiško gaminio surinkimo.
PRISTATYMO INFORMACIJA
NEMOKAMAS PRISTATYMAS VISOJE LIETUVOJE
Daugumą gaminių visoje Lietuvoje pristatome nemokamai. Pristatymui į Kuršių neriją ar atokias vietoves gali būti taikomas papildomas mokestis. Susisiekite su mumis nurodydami savo vietovę tiksliam kainos apskaičiavimui.
GREITAS PRISTATYMAS
Prekes, kurias turime sandėlyje, pristatome per 2-4 savaites. Individualių užsakymų gamyba ir pristatymas paprastai trunka 10-12 savaičių. Mes susisieksime su Jumis suderinti patogiausią pristatymo datą.
PRISTATYMAS Į SUNKIAI PASIEKIAMAS VIETAS
Būtinai informuokite mus, jei pristatymo vieta yra sunkiai pasiekiama (siauri pravažiavimai, žemi tiltai ar minkštas gruntas) – mes suorganizuosime specialų transportą, kad gaminys Jus pasiektų saugiai.
PROFESIONALUS IŠKROVIMAS IR SAUGOJIMAS
Prekę iškrausime Jums patogiausioje vietoje. Visi gaminiai yra supakuoti į sandarias, oro sąlygoms atsparias pakuotes, todėl jas saugu laikyti lauke net ir esant permainingiems orams iki pat surinkimo pradžios.





